RMIT Building 101

The RMIT Building 101 is a design developed for a speculative education tower. The design reflects on standard structural design for high-rise buildings and provides amenities designated for educational purposes. The architecture makes emphasis on the necessity of outdoors spaces in educational precincts, particularly in inner city contexts. This tower brings out gathering spaces to the building’s façade, embracing the communal aspect of learning and creates a structural disjunction between the allocation of public and private amenities. This last feature creates the illusion of an impossible hanging structure.

Hero render option 1.png

SITE

sit eplan rendered 2.png
 

The site is in 81 Bouverie st. Carlton 3053. There is an existing warehouse building with additional retail space which can be removed for new development of the premises. The advantage of the inner-city location and corner site makes this space ideal for an intricate tower design. The exposure to high foot traffic facilitates the consideration of a restaurant venue and other public amenities such as library and lecture theatre.

Site-Axonometric RENDERED.png

Precedents & Research

Language Centre EAFIT University

Precedents layout_Page_01.jpg
Read more!

Roy & Diana Vagelos education centre

Precedents layout_Page_07.jpg
Read more!

Scool of Architecture, Crescent University

Precedents layout_Page_04.jpg
Read more!

Medellin, Colombia

New York, New York

Tamil Nadu, India

Sketch and Research.png

Mass Analysis

The building mass analysis explores the two-volume relationship taken from the precedents, by applying a mass that would suit the site context and environmental conditions. Public spaces are taken to the front of the building and become the street facades.

Sketch and Research2.png

Space planning

The interior spaces have been carefully analysed and distributed to meet all the brief’s requirements, as well as composing an efficient arrangement where each room complements each other and is located in hierarchical order.

Sketch and Research3.png

Building Type

This project has been revised under the NCC (Australia) Specifications for public buildings (Category 9B). RMIT Building 101 is designed for people to gather in small to medium groups for learning and cultural activities.

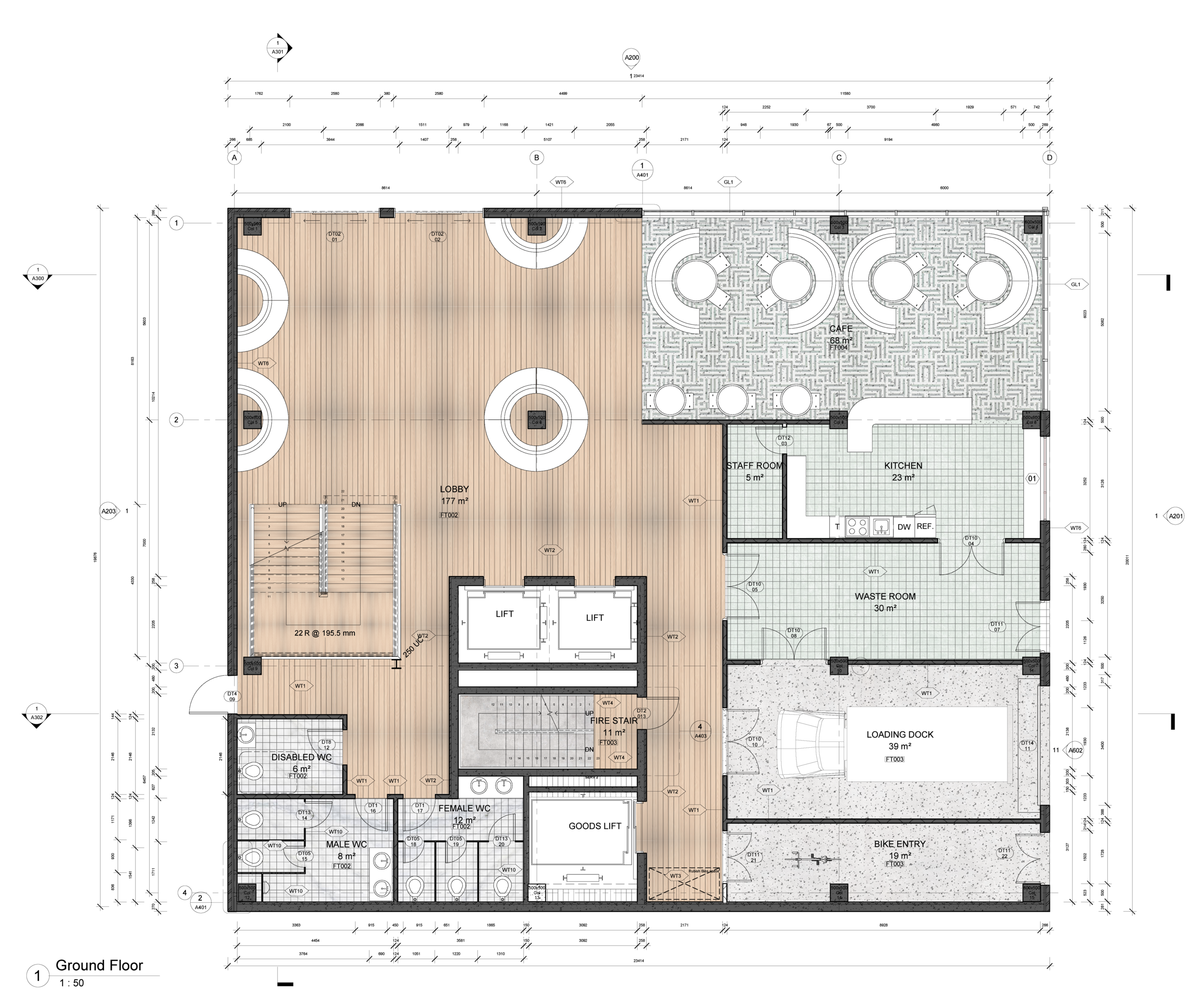
Final Design Proposal

Perspective section rendered and edited.png
GROUND-FLOOR-PLAN rendered.png
RMIT Building 101, East Elevation

RMIT Building 101, East Elevation

 

RMIT Building 101, North Elevation

RMIT Building 101, North Elevation

TYPICAL-FLOOR-PLAN rendered.png
Previous
Previous

Cremone Recreation Centre

Next
Next

After type IV: Being & Nothing